52
70727.00р.
При заказе через сайт скидка 7% по промокоду "2025"
Условия доставки
Доставка осуществляется после 100% предоплатыДлина, см
50
Стартовая тумба AquaViva наклонная из нержавейки (700 мм) – это идеальное решение для профессиональных плавательных бассейнов, спортивных комплексов и учебных заведений. Эта тумба разработана с учетом всех современных стандартов и требований, что делает ее незаменимым элементом для спортсменов и тренеров.
Одна из главных характеристик стартовой тумбы AquaViva – ее конструкция из высококачественной нержавеющей стали. Этот материал обеспечивает долговечность и устойчивость к коррозии, что особенно важно в условиях повышенной влажности и постоянного контакта с водой. Нержавеющая сталь не только обеспечивает надежность, но и придает тумбе стильный и современный вид, что делает ее отличным дополнением к любому бассейну.
Наклонная форма тумбы AquaViva способствует удобному старту для пловцов. Высота в 700 мм оптимально подходит для большинства спортсменов, обеспечивая комфортное положение при старте. Наклонная поверхность помогает пловцам лучше фиксироваться при старте, что значительно улучшает их результаты. Кроме того, такая форма снижает риск травм, так как минимизирует вероятность скольжения.
Стартовая тумба AquaViva также оснащена специальными резиновыми накладками, которые предотвращают скольжение и обеспечивают надежное сцепление с ногами спортсменов. Это особенно важно во время соревнований, когда каждая деталь может сыграть решающую роль в результате. Тумба легко устанавливается и фиксируется на бортиках бассейна, что позволяет быстро и удобно готовить место для старта.
Еще одной важной характеристикой является возможность индивидуальной настройки тумбы. AquaViva предлагает различные варианты окраски и отделки, что позволяет легко интегрировать тумбу в существующий дизайн бассейна. Это особенно актуально для спортивных комплексов, которые стремятся создать уникальную атмосферу для своих клиентов.
Стартовая тумба AquaViva наклонная из нержавейки (700 мм) также легка в уходе. Поверхность из нержавеющей стали не требует сложного обслуживания, достаточно периодически протирать ее мягкой тканью с моющим средством. Это позволяет поддерживать тумбу в идеальном состоянии и продлевает срок ее службы.
Не стоит забывать и о безопасности. AquaViva позаботилась о том, чтобы все элементы конструкции соответствовали международным стандартам безопасности. Это гарантирует, что тумба будет надежной и безопасной в использовании как для профессиональных спортсменов, так и для любителей.
В заключение, стартовая тумба AquaViva наклонная из нержавейки (700 мм) – это высококачественное и надежное оборудование, которое станет отличным выбором для любого бассейна. Ее прочная конструкция, удобство использования и стильный дизайн делают ее идеальным решением для профессиональных и любительских соревнований. Не упустите возможность приобрести этот незаменимый элемент для вашего плавательного бассейна и улучшить условия для тренировок и соревнований.
Характеристики
Условия доставки
Доставка осуществляется после 100% предоплаты
Длина, см
50
Ширина, см
50
Дополнительно
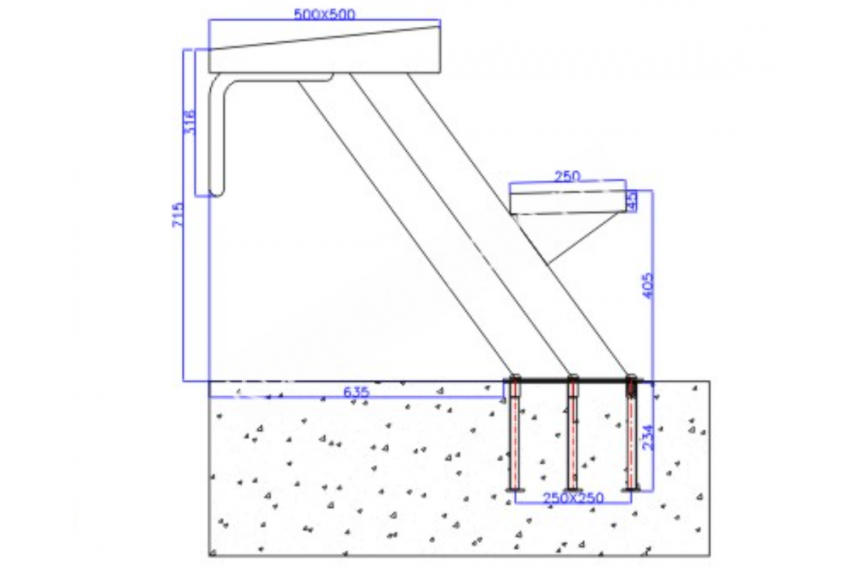
Материал каркаса тумбы: нержавеющая сталь AISI304Материал платформы: полиэстер и стекловолокноАнтискользящее покрытие: даКрепление: анкерноеПружинящие свойства: нетВысота тумбы: 700 ммРазмеры платформы: 500x500 ммДиаметр трубы: 43 мм
Комплектация
Тумба с площадкойПорученьКрепленияИнструкция
Производитель
Aquaviva
Гарантия
12 месяцев
Страна производства
Китай
Отзывов: 0
Нет отзывов об этом товаре.
Стартовая тумба
AquaViva
наклонная тумба
тумба из нержавейки
тумба для бассейна
оборудование для бассейна
тумба 700 мм
стартовая тумба для плавания
аксессуары для бассейна
нержавеющая сталь
спортивное оборудование
купи бассейн
бассейн
плавание.
Aquaviva
Компания Aquaviva является одним из ведущих производителей оборудования для бассейнов, предлагая широкий ассортимент высококачественных товаров, которые помогут создать идеальное пространство для отдыха и релаксации. Мы понимаем, что бассейн – это не... Подробнее...Похожие товары
